聯系我們
公司辦公地址:
山東省壽光市金光西街2699號
電話:0536-5223434
建材公司電話:0536-5211336
置業公司電話:0536-5992988
郵箱:shouguangshizheng@163.com
網址:www.h2w1r1.cn
山東省壽光市金光西街2699號
電話:0536-5223434
建材公司電話:0536-5211336
置業公司電話:0536-5992988
郵箱:shouguangshizheng@163.com
網址:www.h2w1r1.cn
FS外墻保溫板施工工法圖解,看看和傳統外墻保溫有什么區別?
隨著建筑業競爭程度的不斷加劇,如何優質**的為業主奉獻**產品,縮短建筑產品生產周期,降低施工成本是每個建筑施工企業面臨的現實問題。
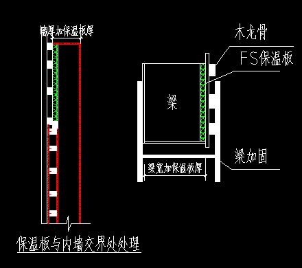
采用工廠化加工將保溫板兩側增加5-20mm砂漿面層,作為住宅樓主體施工時外墻模板,將主體施工與外墻保溫,合二為一,縮短工期,降低施工成本。
一、適用范圍及工藝原理
1、適用范圍:兼作于剪力墻結構住宅樓或同類型結構。
2、工藝原理:將成品保溫板作為主體施工砼外墻模板,通過特制鉚釘埋件,利用砼自身特性,澆筑砼后,將外墻保溫板與主體砼連接成整體,將外墻裝修階段保溫施工提前至主體施工階段施工。


二、工藝流程
1、 FS板材就位
保溫板厚60mm,一面有5mm厚砂漿面,一面有20mm左右砂漿面,較薄的一面與現澆砼澆筑在一起。保溫板尺寸:長2400mm×600mm寬×60mm厚;保溫板重量:約25kg;


2、FS板下料
根據配模尺寸,對FS板下料裁切。

3、安裝預埋鉚釘件
開孔安裝鉚釘件,每塊保溫板平面不少于5個。



4、FS板安裝固定
用扎絲將鋼筋與保溫板預埋件連接,墻內部使用常用水泥支撐,支撐住FS保溫模板和外墻內模板。


5、模板加固
模板支設及加固方式同普通木模板。


6、螺桿洞封堵
使用PU發泡膨脹堵塞FS保溫板螺栓洞


三、操作要點



